相信對CAD比較熟悉的朋友都清楚UCS是用戶坐標系(User Coordinate System)的簡稱。一般情況下,在CAD中繪圖常用的坐標系是世界坐標系(WCS)。但是在某些特殊情況下,由于使用世界坐標系建立坐標系繪圖比較麻煩,因此用戶需要根據自己實際需要設置一個新的參考坐標系,該坐標系就是用戶坐標系。
UCS的主要有以下三種應用:
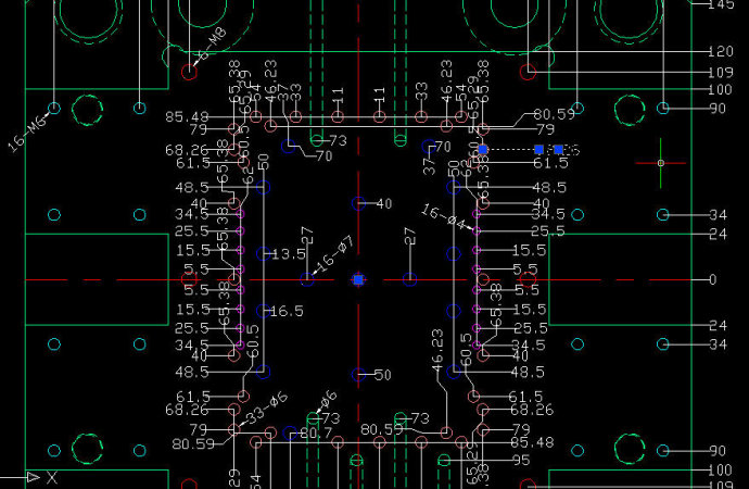
(1) 調整坐標原點以便標注坐標。用法:先確定一個基點,接著把UCS原點調整到該基點處,最后再進行坐標標注。如圖

(2) 調整坐標方向以便繪制傾斜圖紙。
在現實中,由于地理位置的限制,很多小區或市政的規劃圖都是傾斜的(如圖),因此需要對UCS坐標系進行旋轉。

用法:在命令行輸入UCS——回車——輸入Z——輸入需要旋轉的角度
(3) 根據需要將坐標系定位到模型某個表面,以便建模。
用法:在命令行輸入UCS——回車——輸入F——選中模型的一個側面
· ZWorld2025中望全球生態大會成功舉辦:推動工業可持續創新2025-08-29
· “破壁壘,鑄未來”!中望全球生態大會信創專題論壇即將舉行2025-08-27
· ZWorld2025|共謀研發新范式:消費電子專題論壇即將舉行2025-08-27
· ZWorld2025|破解高效制造難題!中望全球生態大會機械設備行業論壇即將開啟2025-08-25
· 汽車零部件專題論壇邀您共謀破局之路2025-08-25
·? 破解提質增效難題!中望全球生態大會模具制造專題論壇即將舉辦2025-08-25
· ZWorld2025|產教協同創新論壇即將舉辦:共筑工業軟件人才培養新生態2025-08-23
· ZWorld2025|電力行業專題論壇即將舉辦:CAx+AI賦能數字化新紀元2025-08-23
·玩趣3D:如何應用中望3D,快速設計基站天線傳動螺桿?2022-02-10
·趣玩3D:使用中望3D設計車頂帳篷,為戶外休閑增添新裝備2021-11-25
·現代與歷史的碰撞:阿根廷學生應用中望3D,技術重現達·芬奇“飛碟”坦克原型2021-09-26
·我的珠寶人生:西班牙設計師用中望3D設計華美珠寶2021-09-26
·9個小妙招,切換至中望CAD竟可以如此順暢快速 2021-09-06
·原來插頭是這樣設計的,看完你學會了嗎?2021-09-06
·玩趣3D:如何巧用中望3D 2022新功能,設計專屬相機?2021-08-10
·如何使用中望3D 2022的CAM方案加工塑膠模具2021-06-24
·CAD自帶字體有哪些,系統字體下載2020-04-23
·CAD如何隱藏部分塊2023-06-02
·怎樣把Excel表格導入到CAD中?2020-11-04
·CAD中Defpoints圖層的特性是什么?2020-04-27
·CAD如何使用REGION命令創建面域2021-01-19
·怎樣在標題欄中顯示完整路徑2017-02-08
·CAD特性欄如何隱藏2025-05-22
·CAD補充了字體,文字還是不顯示該怎么辦2024-03-13




