CAD圖紙一定需要比例的原因分析
小編認為,一張圖紙就像是一份嚴謹又詳細的產品說明書,其意義就在于將單個工作成果進行總結展示,并以此為依據,提供給各方進行協助配合,從而達到共同的目標。而比例這一特性,就是出于圖紙嚴謹這一特性而產生的。下面以樣例圖紙為例,說明比例的含義:

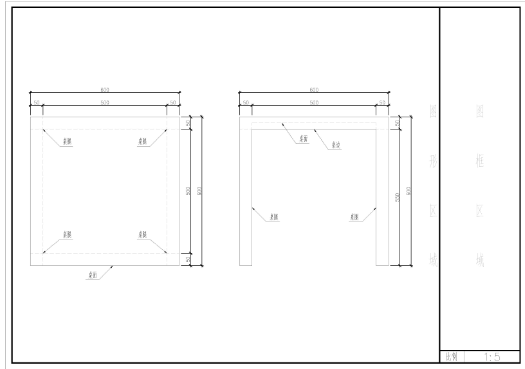
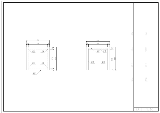
上圖與下圖為同一張桌子在不同比例的A3圖紙下的樣子,可以看到,在比例由1:5變成1:10后,桌子在圖中的大小也變成了原來的1/2。需要注意的是,圖中實體類的圖元大小發生了改變,而如標注、說明文字等注釋類的圖元,其大小卻是不變的.

假設一個制作家具的人拿到這份圖紙后,不需要任何其他的面對面溝通,他就能夠知道,我們需要制作一個方形的桌子 ,桌子變長均為600毫米,有四條腿,每條腿長550毫米,依靠四條寬高均為50毫米的桌邊與桌面相連。其中,方形這個信息是由圖中的實體形狀線獲得的,而尺寸由圖中的尺寸標注上寫的數字獲取,每個東西分別是什么功能,由圖中的說明文字獲得解釋,一份粗糙的說明書大概就完成了。
那么,在一份具有足夠準確尺寸標注的圖紙里,我們還需要按照比例來繪制這些圖形的原因是什么?關鍵就是在于第一步的實體形狀線,只有在按照比例繪制的圖紙里,我們才能第一眼就對這個物體有一個直觀的認識,比如這是一個正方形而不是長方形,比如這張桌子的桌面厚度與他的高度相比是非常小的,桌子下面有較為充裕的空間,避免了潛意識內的錯誤認識而引起協作各方不必要的工作量。
同時,出于節約紙張的目的,我們自然是想在一張圖內放下實體形狀越多越好,字體越小越好,比例的分母自然也是越大越好。然而,人眼的識別能力是有限的,過于微小的字體和圖形,在閱讀起來是極容易出現幻覺和誤差的,所以,每張圖比例的產生的需要根據圖紙的大小、注釋文字的多少進行合理的分配,在識別難易度與信息量之間找到一個平衡點。
推薦閱讀:CAD中對齊和三維對齊的操作步驟
推薦閱讀:3D打印機原理
· ZWorld2025中望全球生態大會成功舉辦:推動工業可持續創新2025-08-29
· “破壁壘,鑄未來”!中望全球生態大會信創專題論壇即將舉行2025-08-27
· ZWorld2025|共謀研發新范式:消費電子專題論壇即將舉行2025-08-27
· ZWorld2025|破解高效制造難題!中望全球生態大會機械設備行業論壇即將開啟2025-08-25
· 汽車零部件專題論壇邀您共謀破局之路2025-08-25
·? 破解提質增效難題!中望全球生態大會模具制造專題論壇即將舉辦2025-08-25
· ZWorld2025|產教協同創新論壇即將舉辦:共筑工業軟件人才培養新生態2025-08-23
· ZWorld2025|電力行業專題論壇即將舉辦:CAx+AI賦能數字化新紀元2025-08-23
·玩趣3D:如何應用中望3D,快速設計基站天線傳動螺桿?2022-02-10
·趣玩3D:使用中望3D設計車頂帳篷,為戶外休閑增添新裝備2021-11-25
·現代與歷史的碰撞:阿根廷學生應用中望3D,技術重現達·芬奇“飛碟”坦克原型2021-09-26
·我的珠寶人生:西班牙設計師用中望3D設計華美珠寶2021-09-26
·9個小妙招,切換至中望CAD竟可以如此順暢快速 2021-09-06
·原來插頭是這樣設計的,看完你學會了嗎?2021-09-06
·玩趣3D:如何巧用中望3D 2022新功能,設計專屬相機?2021-08-10
·如何使用中望3D 2022的CAM方案加工塑膠模具2021-06-24
·CAD?畫直線不直怎么解決2021-06-01
·CAD圖層設置的好處2015-12-04
·不分解也能復制CAD圖塊中部分對象的技巧2024-01-25
·CAD超級填充之外部參照填充2022-03-25
· CAD如何修改替換圖紙文字2017-05-25
·CAD鏡像后填充反向是為什么2025-07-24
·CAD線型管理中全局比例因子與當前對象縮放比例的區別是什么? 2025-07-18
·CAD怎樣設置兩個視口顯示?2022-04-06




